Wohnungen Novigrad (04179)
- Wohnfläche : 140 m2
- Grundstücksfläche : 30 m2
- Entfernung zum Zentrum : 1000 m
- Entfernung zum Meer : 300 m
360.000 €2.700.000 Kn
320.000 €2.400.000 Kn
| Meerblick : | Nein | Etage : | 0 |
| Parkplatz : | Ja | Anzahl der Etagen : | 2 |
| Garage : | Nein | Anzahl der Schlafzimmer : | 3 |
| Keller : | Ja | Anzahl der Badezimmer : | 2 |
| Anbaumöglichkeit : | Nein | Baujahr : | 1980 |
GALLERIE
BESCHREIBUNG DER IMMOBILIE
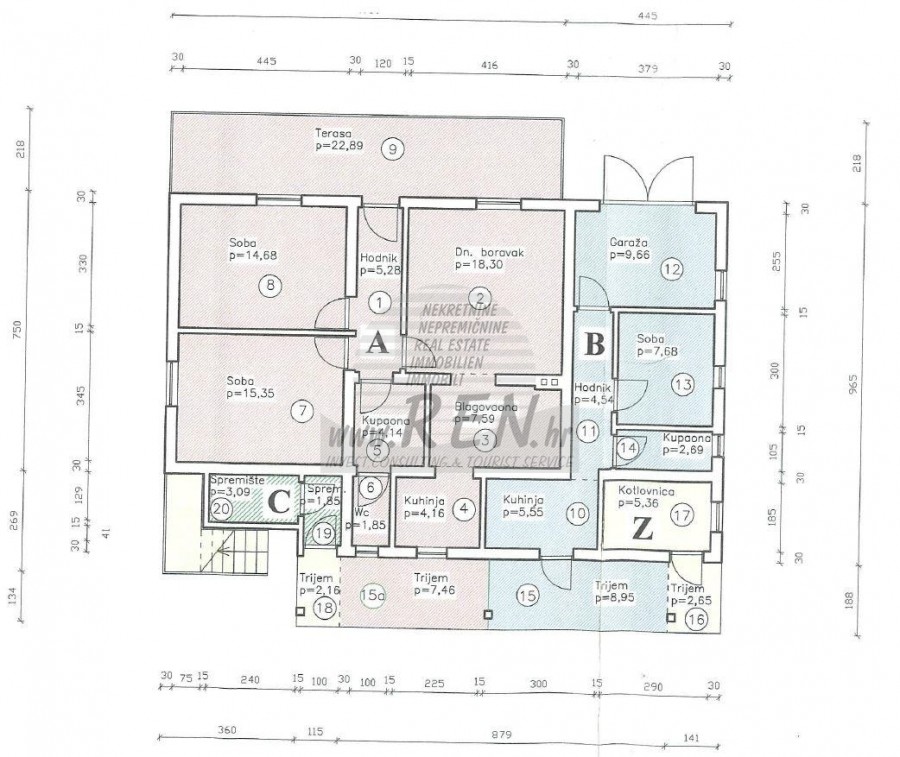
Immobilien Istrien, Zum Verkauf eine Wohnung in Novigrad Wohnung in Novigrad haben insgesamt 140 m2 + Garten, Die Wohnung befindet sich im Erdgeschoss, nur 5 min. (300m) vom Meer und schönen Stränden, 5 min. (1000m) sind Sie vom Stadtzentrum Novigrad entfernt. Die Wohnung besteht aus Küche/Wohnzimmer/Esszimmer, 2 Schlafzimmer, Badezimmer, Abstellraum,Terrasse (separate App mit 1 Schlafzimmer, Bad, Wohnzimmer / Küche, Taverne). Die Wohnung ist ausgestattet mit Klimaanlage, Kamin, Zentralheizung, 2 Parkplatz. Die Wohnung ist nur etwa 100 m vom Verkaufsladen, vom Restaurant 100 m, Marktplatz 1000 m, Arzt 1000 m, Apotheke 1000 m, vom Flughafen in Pula 60 km und vom Flughafen in Portorož 30 km, von der Marine Novigrad 600 m, und von dem Aquapark (Istralandia) 7 km. Für weitere Auskünfte stehen wir Ihnen gerne zur Verfügung.
Alle Daten und Bilder auf diesen Websites werden nur zu Informationszwecken präsentiert, vor jeder Schlussfolgerung oder Aktivität, die auf Daten von diesen Seiten basiert, müssen alle Informationen in unserer Agentur überprüft werden.
WIR EMPFEHLEN
KONTAKTIEREN SIE DEN AGENTEN
REN Nekretnine
Adresse: C. Grissi 5, 52466 Novigrad, Kroatien
E-mail: info@ren.hr
Web: www.ren.hr
Skype: ren.novigrad
Telefon: +385 52 726 664
Mobile: +385 99 24 99 444; +385 99 24 99 445

























